Share:
Description
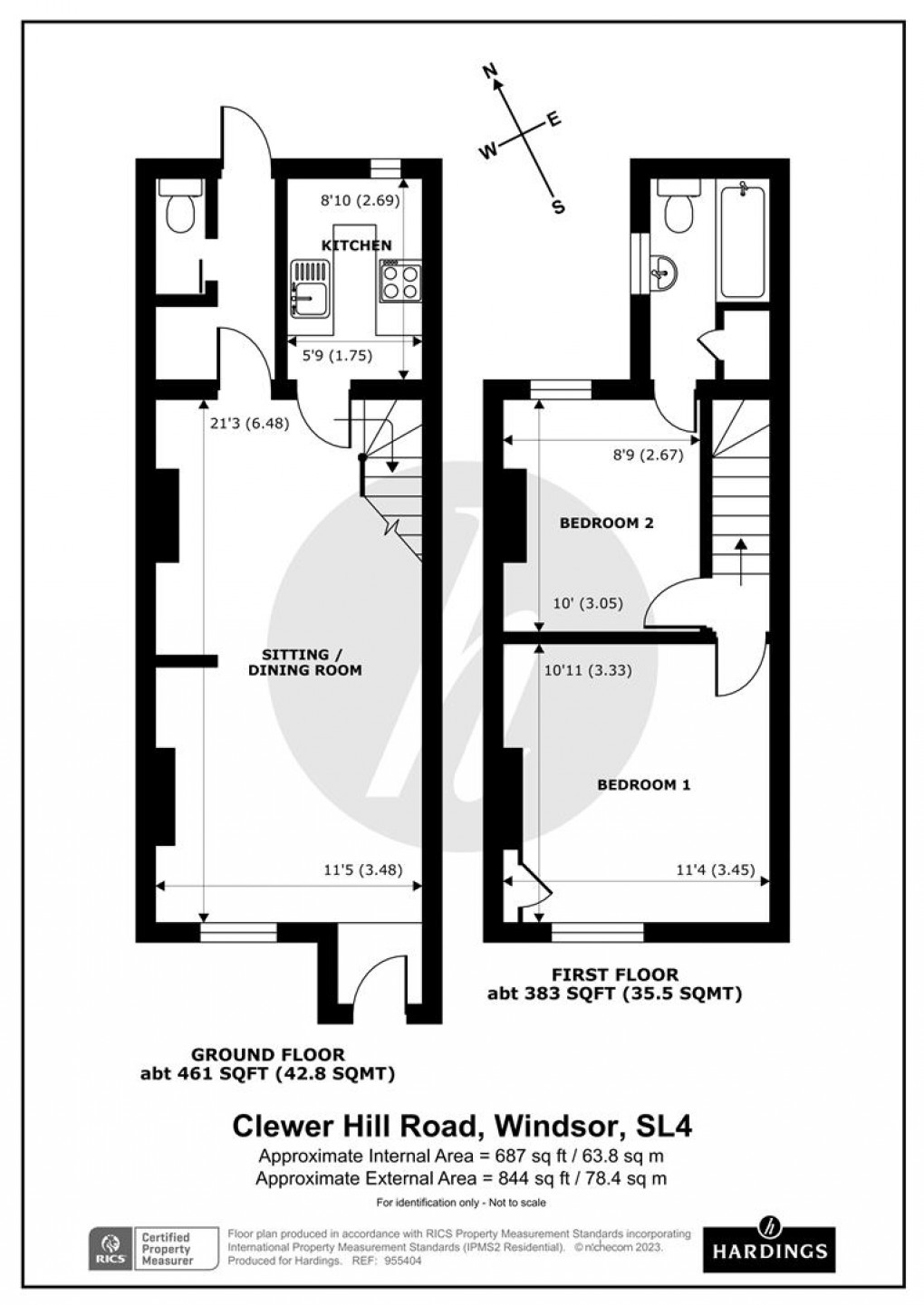
- Period Cottage
- 2 Bedrooms, 1 Bathroom
- Requiring Refurbishment
- Walking Distance to Windsor Town Centre
- Close to Windsor Great Park
- No Chain
- Rear Access
- On-Street Parking
A 2 bedroom period cottage offering an excellent opportunity to refurbish, remodel and extend (STPP). Located within walking distance to the shops and restaurants of Windsor Town Centre, railway links to London and Windsor Great Park, the property benefits from rear access and is offered with no onward chain. Viewing day by appointment Tuesday 20/06 12:00 to 14:00
Floorplan
