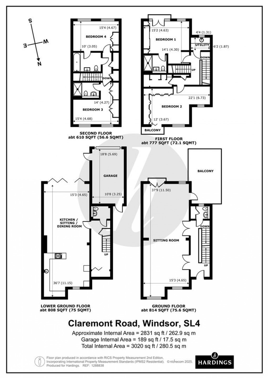
Description
- Semi-Detached Modern Townhouse
- 4 Double bedrooms & 3 Bathrooms
- Sought After Town Centre Location
- Garage & Gated Parking for 1 Car
- South Facing Sunken Terrace Leading up to Low Maintenance Garden
- 40' Reception with South Facing Terrace
- Utility Room on Second Floor
- No Chain
- 37' x 15' Kitchen/Family Room
- One of the Largest Homes within the Linden Homes Development
A rare opportunity to acquire one of the largest homes on the Linden Homes development on Claremont Road, an exceptional 4 bedroom semi-detached villa, originally configured as a 5 bedroom property and thoughtfully reimagined to include a generous study/bedroom and dressing room. Located on one of Windsor’s most sought-after roads, this elegant property is just moments’ walk from outstanding schools, boutique shops, popular bars and restaurants, Windsor Castle, the Long Walk, and mainline rail links to London. Spanning four floors, the accommodation features an impressive approx. 40’ sitting room with terrace, four generous double bedrooms, three of which benefit from en-suite bathrooms, and a utility room conveniently located on the second floor. An additional open-plan kitchen and living area opens onto another sunken, south-facing terrace and garden, perfect for al fresco entertaining. The property also benefits from a garage for one car and gated parking for an additional vehicle. Offered to the market with no onward chain. Educational opportunities are excellent and include St. George’s Windsor Castle, Queensmead and Upton House in Windsor, St. George’s, St. Mary’s, Heathfield and Papplewick in Ascot, Lambrook in Winkfield Row, Eton College, Wellington College in Crowthorne and Royal Holloway in Egham. TASIS and ACS, both international schools, are also located in Egham Please note, some of the photographs used are CGI images for illustrative purposes.