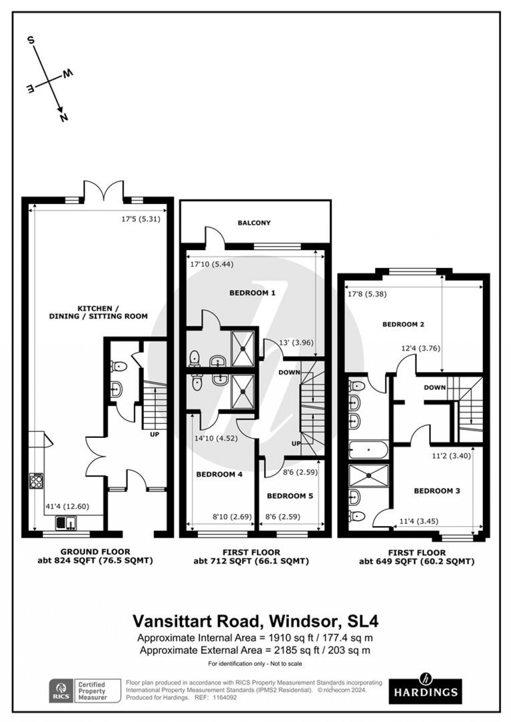
Description
- Large Open Plan Kitchen/ Dining Room/Reception Room
- Principal Bedroom with En-Suite Bedroom and Terrace
- 3 Further Double Bedrooms, 3 Ensuite Bathrooms
- Study
- No Onward Chain
- Bi-Fold Doors onto Garden
- Utility Room with WC
- Town Centre Location
- Off Street Parking for Two Cars
- Stamp Duty Paid
An exceptional opportunity to own this beautifully presented 5-bedroom terraced home on Vansittart Road, Windsor, offered with STAMP DUTY PAID. Situated in a highly desirable town centre location, this stylish property combines generous living space with modern comforts, off-street parking and excellent transport links, creating the perfect blend of convenience and contemporary family living. The ground floor comprises an impressive open-plan kitchen/dining space that flows into a generous reception area, enhanced by high ceilings and bi-fold doors leading to a private west-facing garden. Additional conveniences include a separate utility room and cloakroom. The principal bedroom occupies the first floor and benefits from a private terrace, ample fitted storage, and an en-suite bathroom. Three further double bedrooms each enjoy their own en-suite facilities. Ideally positioned for mainline rail services to London (Waterloo and Paddington), as well as the M25 and M40, the property also offers excellent access to highly regarded schools and Heathrow Airport. Situated on a quiet residential road within easy walking distance of Windsor town centre, the property features stylish, beautifully appointed accommodation throughout.
Floorplan
