Description
- Collection of 4 beautiful Newbuild Townhouses by Prestigious Developer, BellView Group
- Principal Bedroom with En-Suite Bedroom and Terrace
- 3 Further Double Bedrooms, 3 Ensuite Bathrooms
- Study
- Large Open Plan Kitchen/ Dining Room/Reception Room
- Bi-Fold Doors onto Garden
- Utility Room with WC
- Town Centre Location
- Off Street Parking for Two Cars
- Available mid October
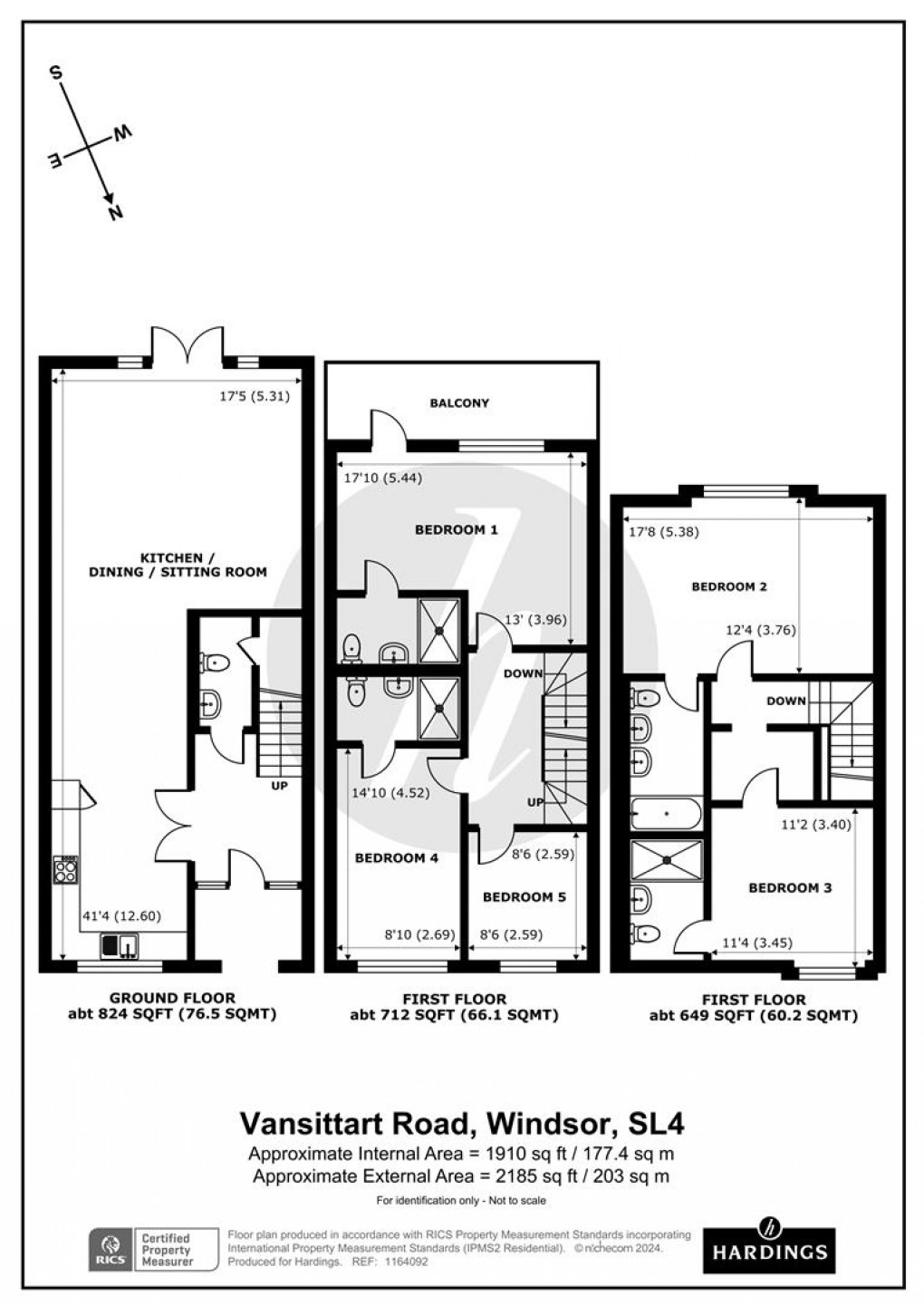
Forming part of a terrace of four properties, this is a luxurious four-bedroom mid terraced townhouse, with parking for 2 cars, built by luxury builders 'The BellView Group'. Located on a quiet residential road just a short walk to Windsor town centre, the property encompasses stylish and beautifully appointed accommodation throughout. On the ground floor, there is an open-plan kitchen/dining room blending seamlessly into a spacious reception area replete with high ceilings and bi-fold doors opening onto a private west-facing private garden. Further benefits include a separate utility room with a cloakroom. The principal bedroom, which is located on the first floor, enjoys a private terrace, ample storage and en-suite bathroom. There are a further three double bedrooms all offered with en-suite bathrooms. The property is ideally located for the mainline British Rail links to London (Waterloo & Paddington), M25 & M40, excellent schools and Heathrow Airport. Offered Unfurnished.
Floorplan
