Share:
Description
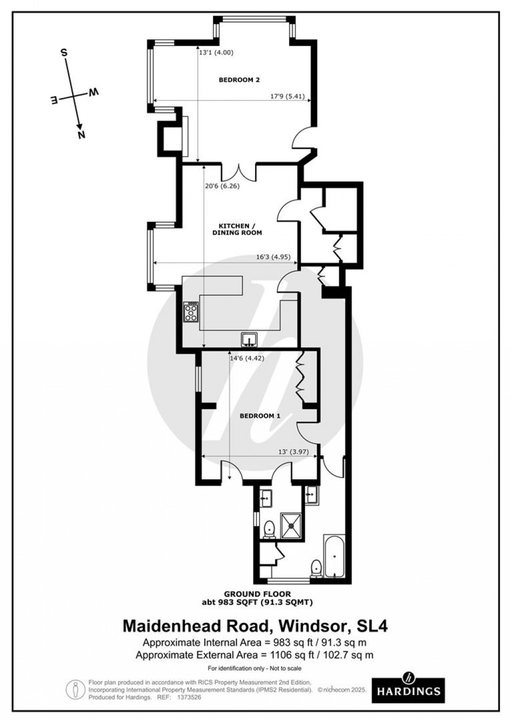
- Stunning Ground Floor Period Conversion Flat
- Off Street Parking for One Car & EV Charging Point
- Share of Freehold (990 Year Lease)
- Direct Access onto Communal Garden
- Storage Shed
- Two Bathrooms (1x En-Suite)
- Short Walk to Mainline Rail Stations (Waterloo & Paddington)
- Close to River Thames, Windsor town centre, Eton, Local Restaurants & Amenities
- Ideal BTL / Air B&B Investment with Fully Furnished Option
- No Chain
A wonderfully light and beautifully presented one/two bedroom ground floor conversion flat forming pat of this elegant town house, ideally located for all that Windsor has to offer. Refurbished to an exacting standard by the current owner, the property offers spacious and flexible living space and further benefits from an off street parking space with EV charging point and direct access onto a well maintained communal garden.
Floorplan
