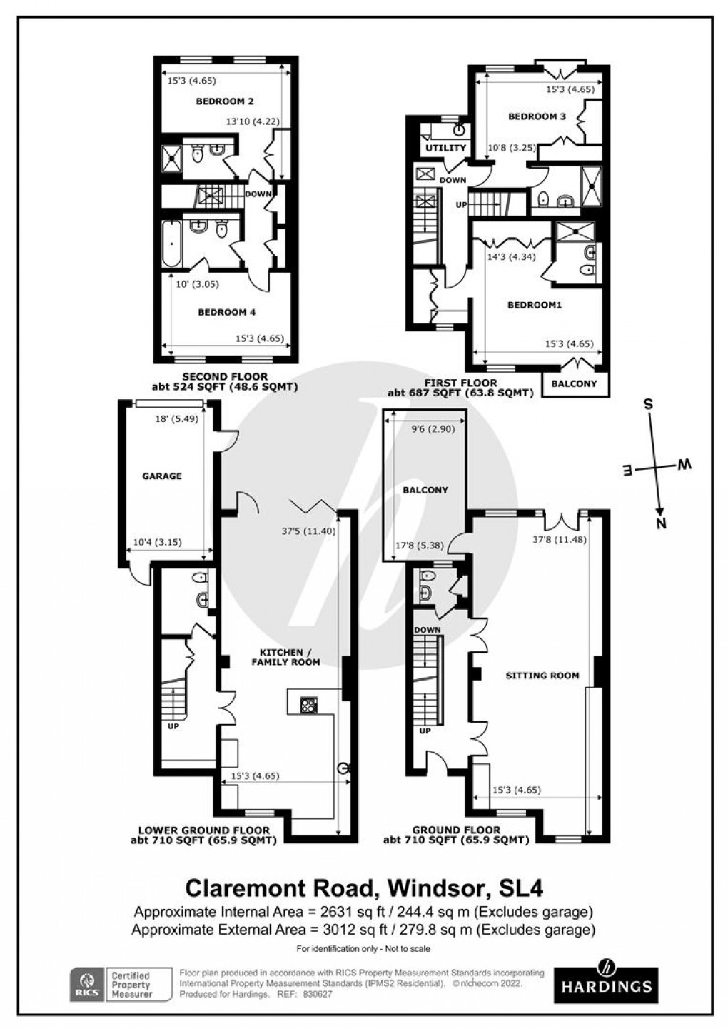
Description
- EPC Rating - B
- 4 Double bedrooms & 4 Bathrooms (4 x en-suite)
- Sought After Town Centre Location
- Garage with parking for 1 car & additional Gated Parking for 1 Car
- South Facing landscaped Garden
- South Facing Roof Terrace off The Lounge
- Additional WC on the lower and ground floor
- Separate Utility Room on Second Floor
- Excellent Storage space
- Underfloor Heating Throughout
Welcome to Claremont Road, Windsor - a stunning property that exudes elegance and charm! This beautiful villa boasts 2 reception rooms, perfect for entertaining guests or simply relaxing with your loved ones. With 4 spacious bedrooms and 4 modern bathrooms, there is plenty of room for the whole family to enjoy. With accommodation spanning over four floors the property benefits from fabulous living space, master suite with dressing area and en-suite, sunken south facing terrace, utility room on second floor a garage and gated parking for 1 car. Situated in a prime location on one of Windsor's most sought after roads, this home is just a moments walk from Windsor Town Centre which offers a vast array of restaurants, retail shops and transport links into Central London.
Floorplan
