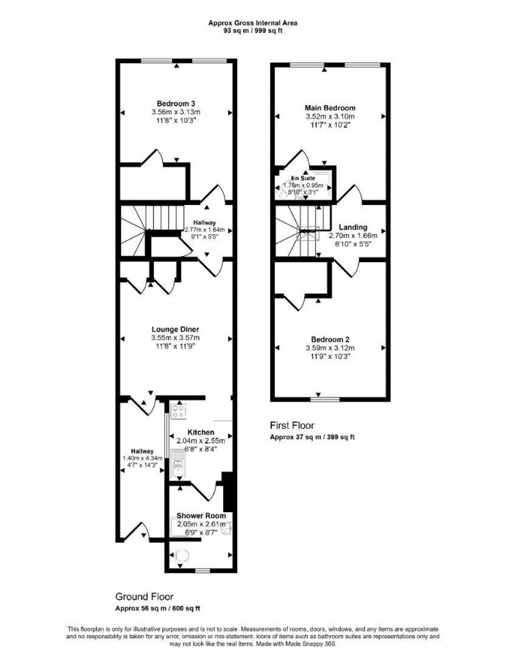
Description
- Town Centre Location
- Three bedrooms
- 2 bathrooms (1x en-suite)
- Duplex apartment
- Private acess
- Available Now
- Furnished
- Suitable for families or sharers
Nestled in the heart of Windsor, on the esteemed Victoria Street, this charming three-bedroom duplex apartment offers a unique opportunity for those seeking a prime location in the town centre. Spanning almost 1000 square feet, the property is perfectly suited for families or sharers looking for a comfortable and convenient living space. Upon entering, you will find a welcoming reception room. The property boasts three well-proportioned bedrooms, one of which features an en-suite bathroom. The property benefits from private access, situated above a selection of shops. With its prime location, you will find yourself just a stone's throw away from local amenities, parks, and the picturesque River Thames. Available for immediate occupancy and offered part-furnished.
Floorplan
