Share:
Description
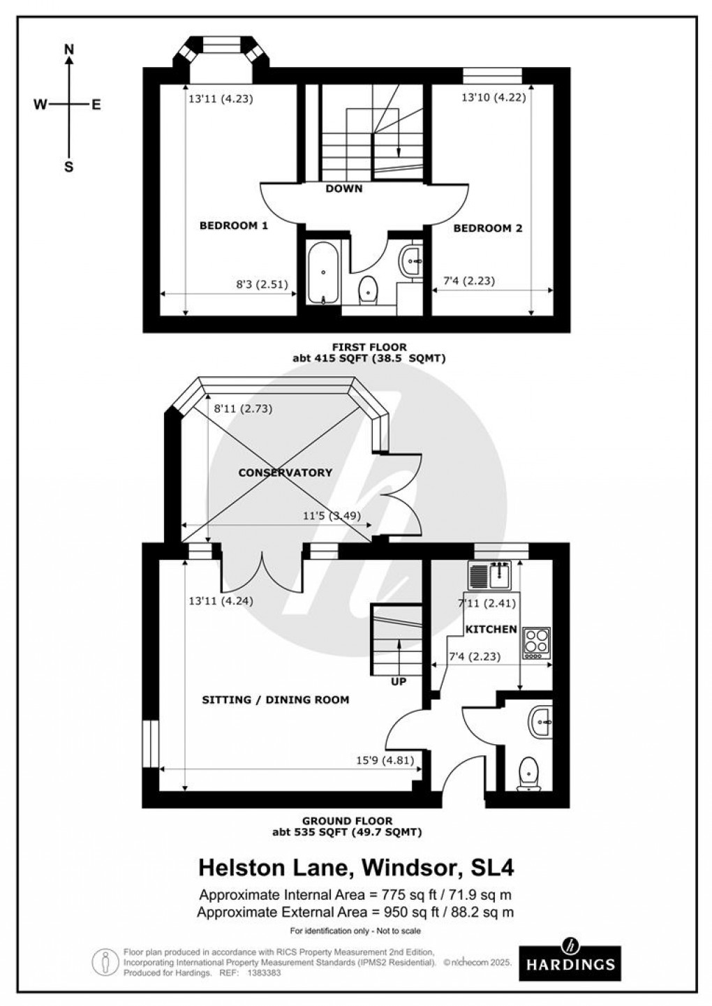
- Two Bedrooms
- Off Street Allocated Parking
- Private Gated Development
- Modern Integrated Kitchen
- Two Reception Rooms
- Good Condition Throughout
- End Terraced Home
- Large Private Garden
- Visitor Parking
- Freehold
Tucked away within a private gated development, this beautifully presented end-terraced home offers modern living in a secure and peaceful setting. The property features two well-proportioned bedrooms and a stylish modern integrated kitchen. A generous reception room and conservatory provides versatile living and dining space with views over private garden. Further benefiting from off-street allocated parking.
Floorplan
