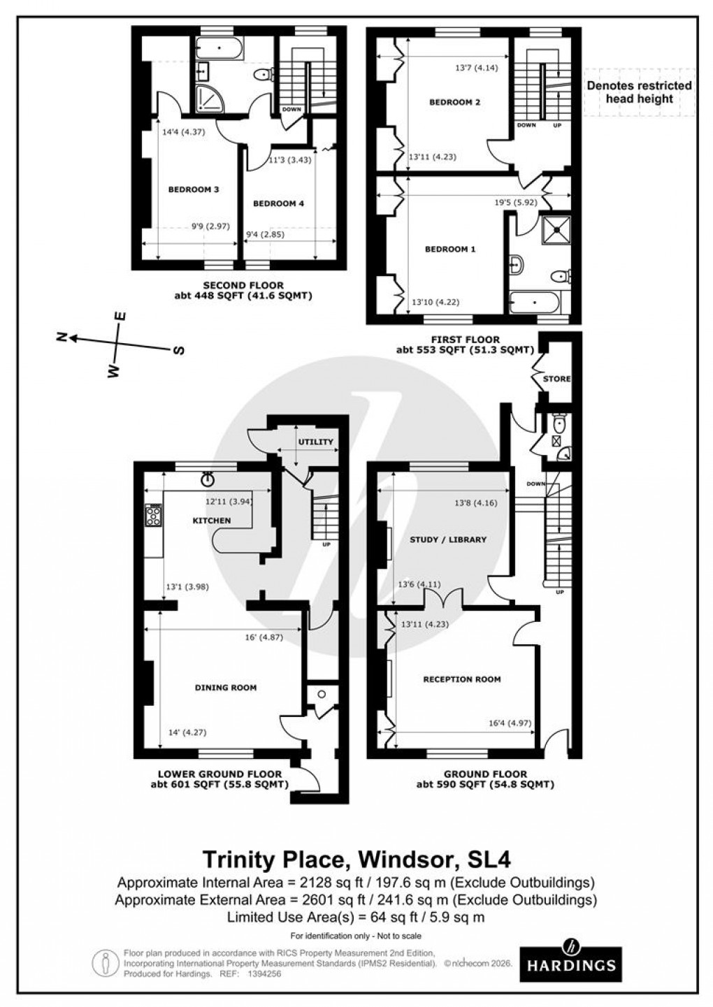
Description
- Four Bedrooms
- Off-Street Parking for up to Four Cars
- Formal Dining Room
- Private Walled Courtyard Garden
- Grade II Listed Town House
- Principal Bedroom with En Suite Bathroom
- Two Reception Rooms
- Sauna
- Wealth of Features Throughout
- Substantial Kitchen & Informal Dining Area
A rarely available, and truly exceptional, Grade II listed Townhouse enviably positioned on one of Windsor’s most prestigious and historic roads. This beautifully proportioned home offers an impressive blend of period character and practical family living, arranged over multiple floors and rich in original architectural detail throughout. The accommodation comprises four well-sized bedrooms, including a principal bedroom with en suite bathroom and second bedroom featuring a washbasin and vanity unit. Offering two floors of entertainment space, with an front formal reception room with doors to a further reception room (currently used as an study/library) and a spacious kitchen and dining room on the lower ground. The property retains a wealth of original features, reflecting its heritage and status, while remaining well-suited to modern lifestyles. Externally, the house benefits from off-street parking for multiple cars and a private walled courtyard garden. This is a rare opportunity to acquire an exceptional property in a prime location; all within a short distance to Windsor Town Centre and The Long Walk
Floorplan
