Share:
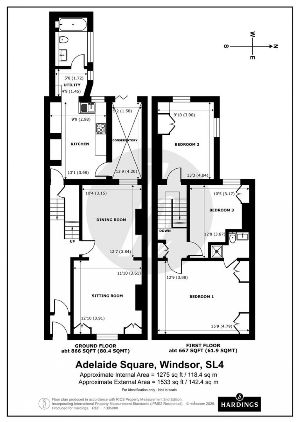
Description
- Three Bedrooms
- Period features
- Grade II Listed House
- Principle Bedroom with En Suite Bathroom
- Close to The Long Walk, Local Shops & Direct Rail Links to London (Waterloo & Paddington)
- Kitchen with Access onto Private Courtyard garden
- Downstairs Bathroom
- Utility Area
A superb 3 bedroom Grade II listed property with a modern interior, in the heart of Windsor. This elegant home benefits from high ceilings and period features throughout. The property further benefits from a delightful East facing private garden and West facing courtyard garden off the kitchen and permit parking. Located In the heart of the ‘Golden Triangle’, a short walk from Windsor town centre and the Long Walk.
Floorplan
