Share:
Description
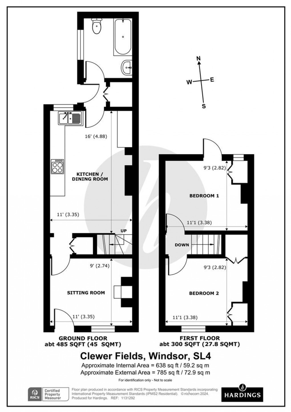
- Two Bedroom Cottage
- Beautifully presented throughout
- Private rear garden
- Parking for one car
- Master bedroom with private balcony
- Walking distance to Windsor Town Centre
- Downstairs Bathroom
- Available end of April
- EPC rating D
A beautifully presented two bedroom Cottage in the heart of Windsor. Boasting two bedrooms, separate living room, downstairs bathroom and private rear garden. Situated in a quiet location and walking distance to Windsor Town Centre.
Floorplan
