Share:
Description
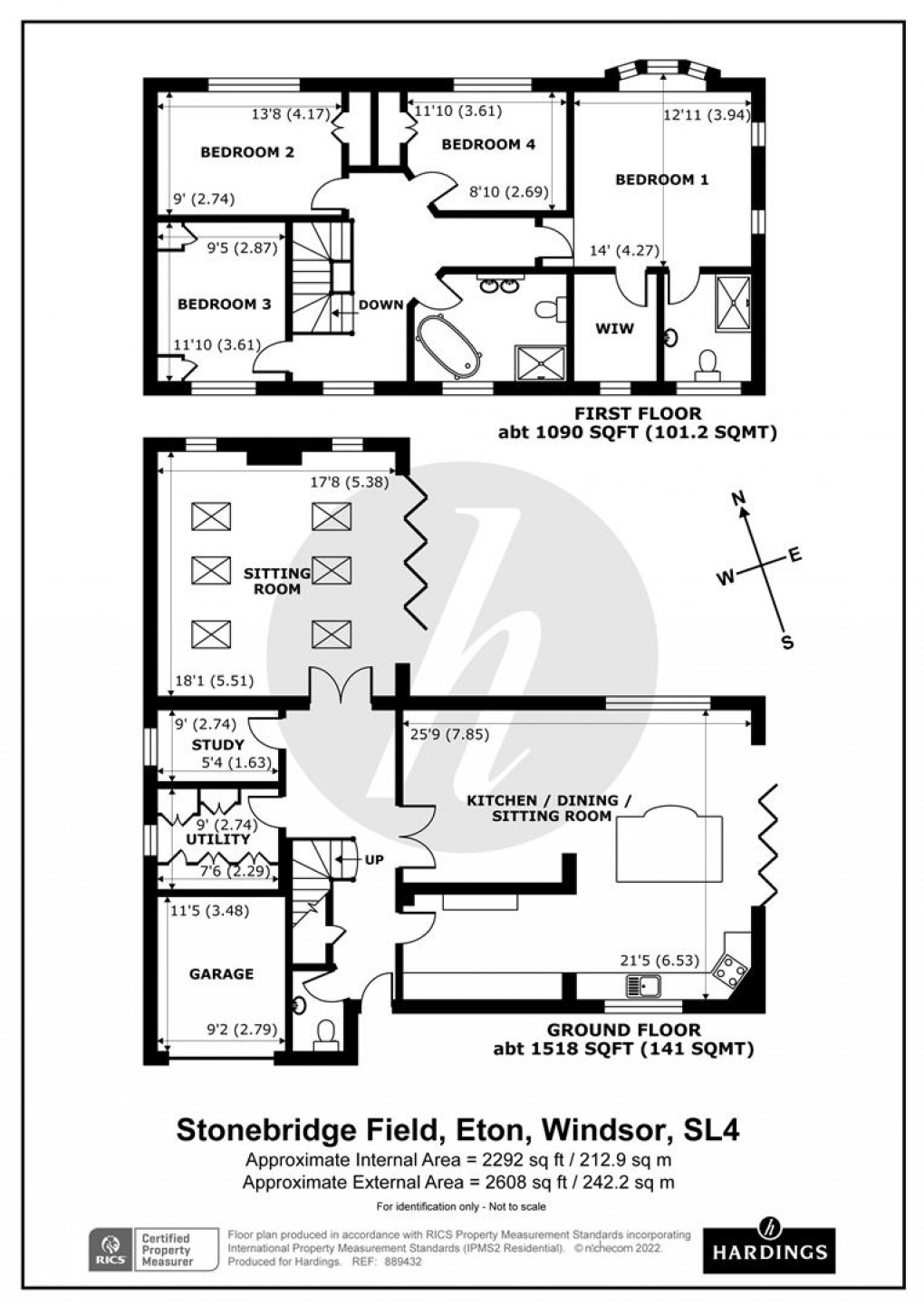
- Sizeable detached house
- Four bedrooms
- Two bathrooms
- Ample parking
- Garage
- Two reception rooms
- Further study/office space
- Short walk to town and Eton College
- Tax band F & EPC C
A well-proportioned and smartly presented detached house located down a quiet cul-de-sac within walking distance to Eton College and Town Centre. The property comprises entrance hall with cloakroom, large kitchen/dining/sitting room, additional reception, study, utility room, main bedroom suite with walk in wardrobe, three further double bedrooms and a family bathroom. Private rear garden with patio area. Garage. Unfurnished. Council Tax Band F. EPC:C.
Floorplan
