Share:
Description
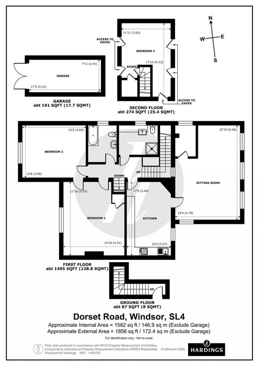
- First floor period maisonette
- Triple aspect reception room
- Highly desirable location in central Windsor
- Eat in kitchen
- Elegant and Impressive proportions
- Two bedrooms plus a bonus room
- Large Rear Garden (accessed seperately)
- Two bathrooms
- Garage
- EPC-C. Council tax band-D
A magnificent first floor maisonette within a period semi-detached house, located in the heart of the Windsor town centre. The property consists of an elegant triple aspect living/ dining room, a separate eat-in kitchen and two large double bedrooms with two bathrooms. On the second floor is useful bonus room. A mature private garden and garage are accessed via side road. The maisonette occupies a prime residential location, and is just a short stroll to the mainline rail links to London (Waterloo and Paddington) and with close proximity to Elizabeth Line, local restaurants, shops and cafes. No chain.
Floorplan
