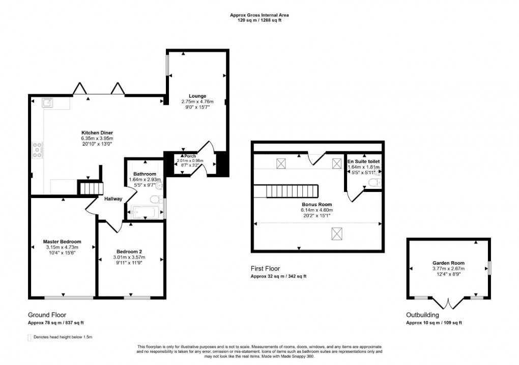
Description
- Two Double Bedrooms
- Fantastic bonus room with cloakroom
- Open plan kitchen/diner with bi-fold doors
- Driveway for up to 3 cars
- Large rear Garden
- Equipped Outbuilding
- Stylish family bathroom
- Cosy Living area
- Quiet residential road
- Beautifully presented throughout
Nestled on the charming Redford Road in Windsor, this delightful semi- detached bungalow offers a perfect blend of comfort and convenience. With two spacious double bedrooms, this property is ideal for small families, couples, or those seeking a peaceful retreat. The bungalow features a well-appointed main bathroom and an additional cloakroom, ensuring ample facilities for residents and guests alike. One of the standout features of this home is the bonus loft room, which provides versatile space that can be tailored to your needs, whether as a study, playroom, or extra storage. The property also boasts an outhouse equipped with electricity, presenting an excellent opportunity for a home office or gym. The generous driveway accommodates parking for up to three cars. The large rear garden is a true highlight, offering a private outdoor space perfect for relaxation, gardening, or entertaining friends and family.
Floorplan
