Share:
Description
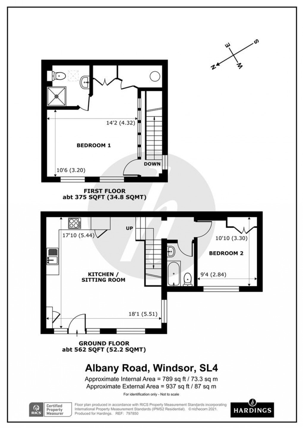
- Terraced Cottage
- Open plan kitchen/reception
- Spacious master bedroom with En-suite
- Downstairs bedroom and bathroom
- Town centre location
- Unfurnished
- Available late October
- Tax Band D
- Offered Unfurnished
- Permit Parking
A modern, well presented town centre cottage featuring two bedrooms and two bathrooms.
Floorplan
