Share:
Description
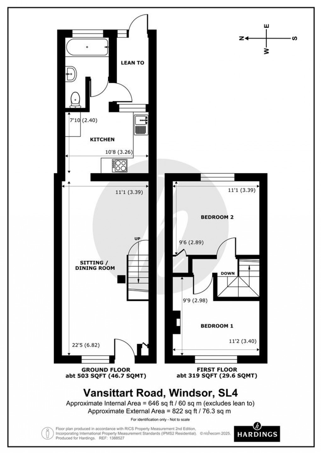
- Two Bedroom Home
- Modern Bathroom
- Immaculate Condition Throughout
- Spacious Reception/ Diner
- Wealth of Period Features
- Short Distance To The Mainline Rail Stations
- Access To A Delightful Communal Green
- Permit Parking
This charming Victorian two-bedroom home is beautifully presented throughout, offering immaculate condition and a wealth of period features. The property includes a spacious reception/dining room, a modern kitchen and a contemporary & sleek bathroom. The location is highly convenient, situated just a short distance from mainline rail stations providing swift connections to London and beyond and with close proximity to shops & amenities nearby. Residents benefit from access to a delightful communal green behind the property.
Floorplan
