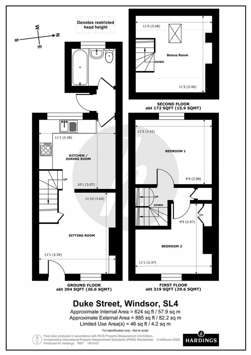
Description
- Two Bedroom
- Loft Bonus Room
- Eat in Kitchen
- Wealth of Period Features
- Access to Communal Gardens
- No Onward Chain
- Moments from Windsor Town Centre
- West Facing Private Garden
- Good Condition Throughout
- Front Reception Room
A charming period home located on the ever-popular Duke Street, just moments from Windsor town centre and the River Thames. This attractive property is presented in good condition throughout and offers well-balanced accommodation over multiple floors. To the ground floor is a welcoming front reception room, full of period character, alongside a spacious eat-in kitchen with views over your westerly facing private garden. With two well proportion bedrooms and an added bonus of a bonus loft room ideal for anyone working from home. Ideally positioned within easy walking distance of Windsor’s shops, restaurants, cafés and transport links, this home combines period charm with a highly convenient location. The property comes to the market with no onward chain.
Floorplan
