Share:
Description
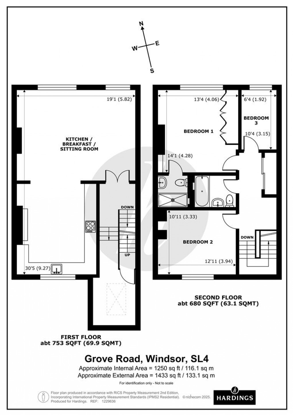
- 3 Bedroom Period Conversion Flat
- 2 Bathrooms (1 x En-suite)
- Open Plan Kitchen/Breakfast Room/sitting Room
- Wonderfully High Ceilings
- Period Features
- Share Of Freehold
- Loft Storage
- Town Centre Location
- Short Walk to Mainline Rail Links to london & Local Amenities
- Permit Parking
A beautifully presented and wonderfully light 3 bedroom flat arranged over the top floors of a converted period townhouse offering spacious, open plan living, complemented with a blend of period features and contrasted with a contemporary finish. Occupying a prime residential location, the property is just a short stroll to the mainline rail links to London (Waterloo and Paddington) and with close proximity to Elizabeth Line, local restaurants, shops and cafes and further benefits from excellent storage making it the perfect lock up and leave.
Floorplan
