Share:
Description
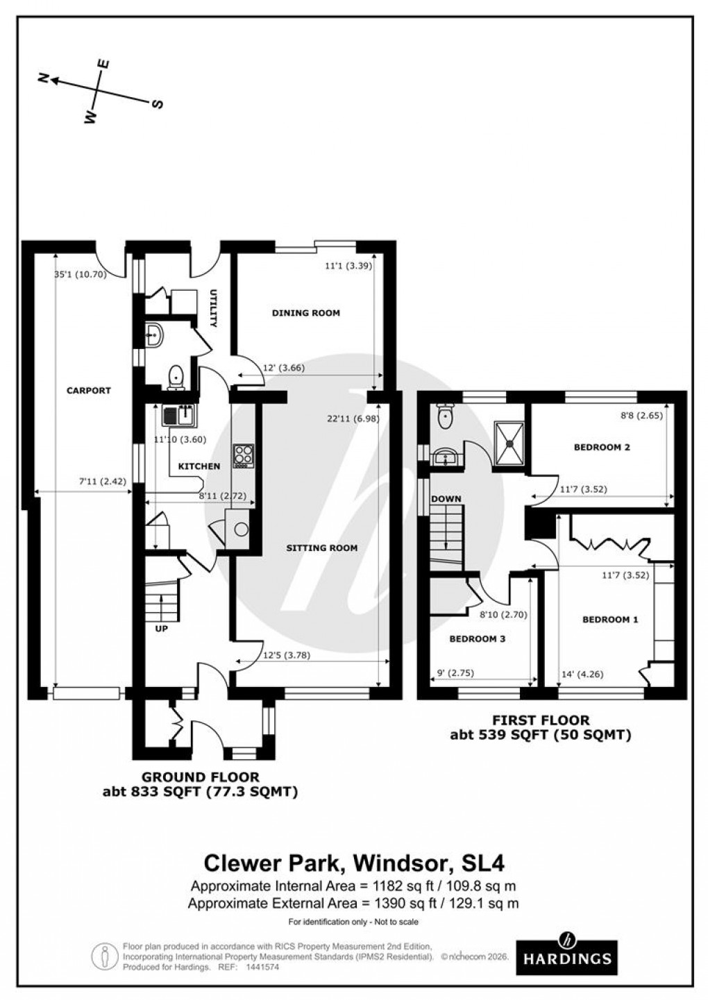
- Three Bedrooms
- Semi-Detached Home
- Off Street Parking
- Potential to Extend ( STPP)
- Quiet Residential Area
- Attractive Pretty Garden
- Garage/ Car Port
- Short Walk to Mainline Rail Links to London (Paddington & Waterloo)
- Downstairs Cloakroom
- Double Reception Room
Situated within the sought-after Clewer Park, this well-proportioned, three-bedroom semi-detached home offers spacious and practical accommodation, ideal for family living. The property features a double reception room & dining area with views over the attractive & well maintained private garden, a separate kitchen, as well as a carport and off-street parking. There is also excellent potential to extend (STPP), allowing buyers to further enhance and personalise the property to suit their needs. Ideally located within a quiet residential area, the property is just a short walk from mainline rail links into London (Paddington & Waterloo), as well as local amenities and schools.
Floorplan
